leštená nerez
Funkčný a vyvážený dizajn
- harmonická súhra funkčných a optických prvkov
- vysokokvalitný drez so zakrytým bočným prepadom C-overflow® a výpusťou InFino® – elegantne integrovaná a mimoriadne jednoduchá na údržbu
- elegantné plochý IF okraj pre zarovnanie s povrchom pracovnej dosky
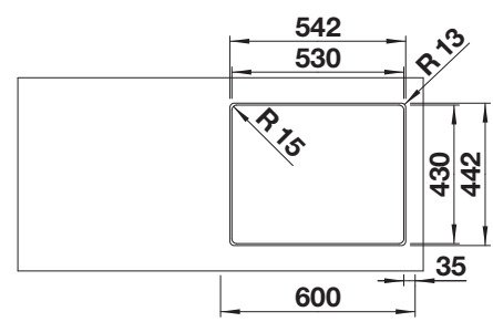
- komfortne veľká vanička a maximálne využiteľné dno vaničky
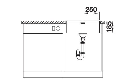
Odtoková armatúra s prepadom, 3 ½“ InFino výpusť so sitkom, sada úchytov, zápachový uzáver s odbočkou pre umývačku riadu
IF – Plochý okraj
- široká ponuka nerezových drezov s IF-plochým okrajom
- pri zabudovaní zhora vhodné aj pre laminátové pracovné dosky
Jeden model, dve možnosti zabudovania:
- zabudovanie zhora na pracovnú dosku (bezpečná a rýchla montáž)
- zabudovanie do roviny s pracovnou doskou
Príklad montáže drezu s plochým okrajom
Pri zabudovaní zvrchu sa drez položí zhora do výrezu. Pred zabudovaním sa pod okraj drezu nanesie silikón. Drez
sa o pracovnú dosku prichytí odspodu úchytmi. Pri zabudovaní do roviny s pracovnou doskou sú IF-drezy v úplnej rovine s doskou.














Recenzie
Nikto zatiaľ nepridal hodnotenie.